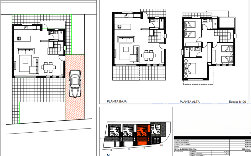
Location: DeniaType: VillaBedrooms: 3Bathrooms: 3Build: 155m2Plot: 220m2PoolEnergy Cert.: XChildren's Play AreaClose to amenitiesClose to BeachDouble GlazingFitted KitchenGarden - CommunalPool - Communal
Description
Four modern, new build villas with communal pool for sale in Denia This exclusive development features four detached homes with a stylish, functional design. Each property benefits from access to a spacious communal swimming pool—ideal for relaxing and enjoying the Mediterranean climate—and also boasts a private, south-facing garden that ensures natural light and privacy throughout the day. Key features: 3 bedrooms and 3 bathrooms – ideal for families or those who appreciate generous, flexible living spaces Plot sizes between 220 m² and 320 m², offering space to personalize your outdoor area High-quality materials throughout, carefully selected for durability, style, and sustainability Private garden and independent parking for each villa, providing comfort and peace of mind Only 4 units remaining – prices starting at €675,000. Estimated delivery: November 2025. Call us now for more information!